LW
軽量ウォルコン
日東のLW(軽量ウォルコン)は、上載荷重q=10kN/m²をクリアする限界内で、出来るだけ肉厚を薄く、底版幅を小さく設計しております。 従って、重量が軽くなり取り扱いが容易で、底版幅を小さくした事により、堀削幅が少なくてすみ大幅な工期の短縮が図れます。 尚、製品の接合部にはフランジ金具を設けてボルトジョイントし、不等沈下、前面のずれを防止します。 軽量ウォルコンは、車道用には使用できません。(小型車なら可)歩道用、宅地造成等規制区域外の宅地、学校、工場等の造成工事、その他の土留擁壁等に最適です。
特徴
たて壁の背面側は、天端より500~600mm垂直になっているので、摺付部の加工も容易にできます。
軽量ウォルコン 必要地耐力表
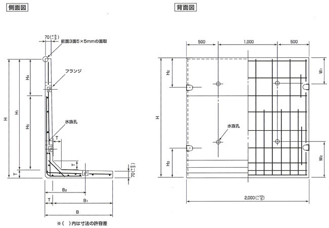
製品図
軽量ウォルコンは上載荷重q=10kN/m²で設計しています。設計条件に変更があればその都度設計いたします。
寸法表
「納入・施工についてのお願い」(搬入・施工マニュアル)
製品納入についてのお願い
○搬入路の確保をお願いします。
大型進入禁止等規制事項がある場合、指定進入路等規制がある場合は事前に早めの指示をお願いします。現場内を走行する際は鉄板養生など走行に適した搬入路をご指示してください。
○荷降ろしのための準備をお願いします
製品重量を安全に荷降ろしできる規格のクレーン等を準備し、置き場の確保をお願いします。納品後の破損などを防ぐため、仮置き製品の管理は衝撃や不安定な置き方を避け、納入数量に合わせ十分な広さを準備してください。
施工時のお願い
○吊り具・ワイヤーの点検
使用する前に必ず行ってください。
○製品吊り上げ時・据付時の注意事項
吊り具の操作方法は決められた使用方法にてご使用ください。
吊り荷の下には絶対に入らなこと。
クレーンへの吊り荷合図は資格者が行うこと。
○製品の取扱は丁寧にお願いします
製品同士をぶつけたりすると破損を招くおそれがありますので、軽く触る程度で製品同士を据え付けバール等にて微調整を行ってください。
○埋戻し
衝撃が加わるような埋戻しは製品破損の原因となります。一度に大量の土砂を埋戻しせず、約30cmずつ締固めながら丁寧に行ってください。

