株式会社 日東 (防火水槽、貯留槽、擁壁、水路等、コンクリート製品の製造販売)


お問合わせ
049-283-5182
雨水貯留槽

ボックス型 貯留槽
コンクリート製

特徴

ゲリラ豪雨による雨水の流出抑制対策 貯留量の少ない現場に適しており、10m³から必要貯留量に合わせて提案をさせて頂きます。
ボックスカルバートを緊結して一体化を図っているため、現場打ちを必要とせずスピーディーな施工ができ工期が大幅に短縮できます。
また、止水性、耐震性にも優れた信頼性の高い製品です。

施工例(112m³)

ボックス型貯留槽 112m³ ボックス型貯留槽 112m³クリックで拡大

施工例(54m³)

ボックス型貯留槽 54m³ ボックス型貯留槽 54m³クリックで拡大

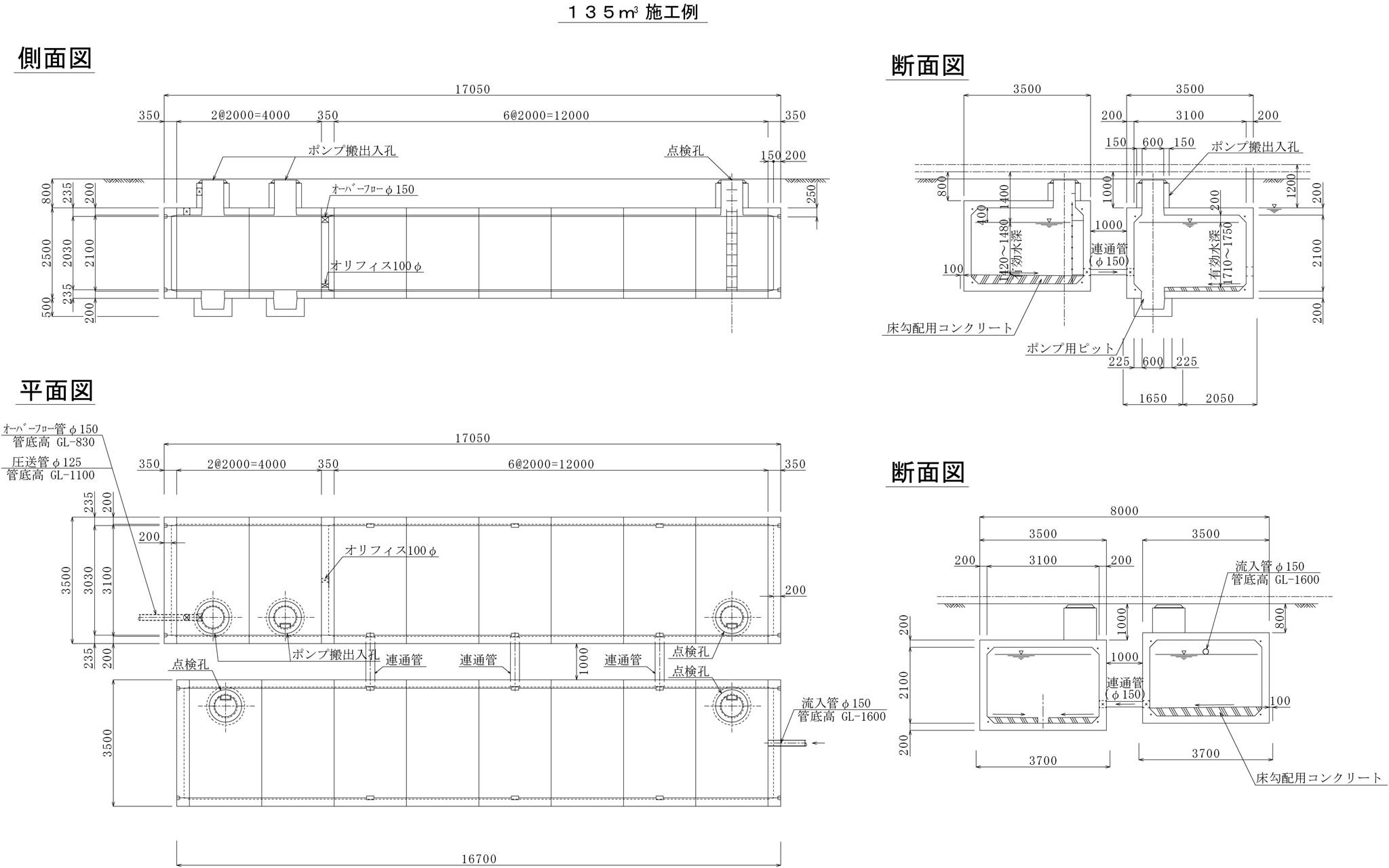
施工例(135m³)

ボックス型貯留槽 135m³ ボックス型貯留槽 135m³クリックで拡大

ページトップへ戻る